Опыт проведения испытаний крытых вагонов для перевозки автомобилей
Как показал выполненный специалистами Инженерного центра анализ объемов перевозок автомобилей в России, в настоящее время наблюдается их устойчивая положительная динамика. В будущем эта тенденция сохранится, в первую очередь за счет роста перевозок железнодорожным транспортом.
У железной дороги, по сравнению с водным и автотранспортом, существует ряд преимуществ – высокая степень сохранности перевозимого груза, сжатые сроки доставки продукции потребителю и т. д. Продемонстрировать это можно на примере доставки автомобилей японских концернов в Россию, которая на сегодняшний день в основном осуществляется с помощью дальних морских (из Японии в Финляндию) и автомобильных (из Финляндии в Россию) перевозок (рис. 1). Срок такой транспортировки варьируется от 60 до 90 суток.
Рис. 1. Схема основных маршрутов перевозки автомобилей из Японии в Россию
Однако, при использовании Транссибирской магистрали этот срок может быть сокращен до 20 суток. Кроме того, железнодорожный транспорт может упростить перевозку автомобилей производства стран Европы, а также континентальной Азии.
В связи с этим, при наличии роста спроса на продукцию автомобильной промышленности, актуальным направлением развития железнодорожной техники является создание крытых вагонов для перевозки автомобилей, отвечающих современным требованиям грузоотправителя, грузополучателя и владельца инфраструктуры – ОАО «РЖД».
Наиболее сложным и дорогостоящим этапом всего комплекса работ по постановке на производство новых вагонов является проведение испытаний.
При этом одна из основных задач – это создание нагрузок на вагон согласно требованиям нормативных документов [1, 2, 3], регламентирующих характеристики вновь разрабатываемых вагонов.
При испытаниях крытых вагонов для перевозки автомобилей весовая нагрузка может быть обеспечена путем их загрузки:
- автомобилями;
- имитаторами автомобилей.
Причем вагоны других типов (полувагоны, платформы и др.) в основном загружают тем же грузом, для которого они и предназначены (насыпные грузы, контейнеры и др.).
Следует отметить, что в случае загрузки крытого вагона автомобилями (рис. 2) не удается обеспечить выбор полной грузоподъемности, вследствие чего невозможно в достаточной степени оценить прочностные характеристики подвижного состава.
Рис. 2. Схема загрузки вагона для перевозки автомобилей
Для решения данной задачи за последние годы Инженерным центром проведен ряд испытаний новых моделей крытых вагонов, например модели 11-9772 производства ЗАО «Промтрактор-Вагон» (г. Канаш) грузоподъемностью 20 т, предназначенного для двухъярусной перевозки автомобилей (рис. 3).
Рис. 3. Вагон модели 11-9772 для перевозки автомобилей
Груженый режим при испытаниях (статических и на соударение) был обеспечен загрузкой вагона разукомплектованными и бывшими в употреблении автомобилями (рис. 4). Для выбора максимально допускаемой грузоподъемности вагона была осуществлена дозагрузка этих автомобилей мерным грузом (мешками с песком).
Загрузка осложнялась отсутствием регулируемой по высоте аппарели, позволяющей поднимать автомобили на второй ярус вагона.
Рис. 4. Вагон модели 11-9772, загруженный автомобилями
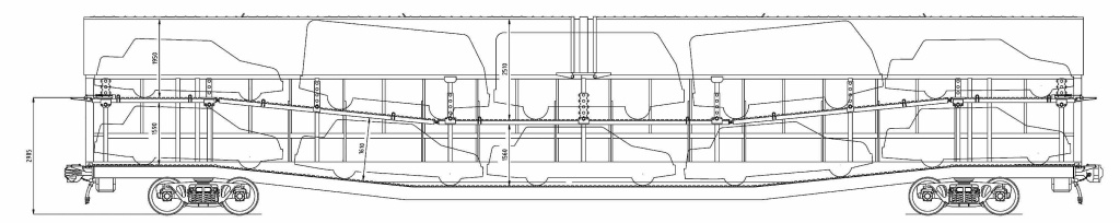
При испытаниях крытых вагонов моделей 11-9779 (ОАО «Завод металлоконструкций»), 11-9759 (ООО «БрянскВагонмаш»), 11-835-01 (Transtech, Финляндия) был предложен другой вариант загрузки – имитаторами автомобилей. Вагон модели 11-9779 (рис. 5), помимо торцевых, оснащен боковыми дверями, двумя ярусами погрузки и предназначен для перевозки как тарно-штучных, пакетированных грузов, так и автомобилей. Общая грузоподъемность вагона 49 т, грузоподъемность верхнего и нижнего ярусов при перевозке автомобилей составляет 7,2 и 21 т соответственно.
Рис. 5. Крытый вагон модели 11-9779 для перевозки автомобилей, тарно-штучных и пакетированных грузов
При испытаниях в режиме перевозки автомобилей вагон загружался имитаторами (с использованием деревянных и железобетонных шпал) по схеме (рис. 6), согласованной установленным порядком.
Рис. 6. Схема расположения и увязки имитаторов автомобилей крытого вагона модели 11-9779
Крепление имитаторов (рис. 7) осуществлялось с использованием штатных мест крепления и ремней для увязки груза. Имитаторы устанавливались на четыре резиновые пластины толщиной 30 мм. Масса отдельного имитатора, его центр тяжести и ширина размещения резиновых опорных пластин соответствовали аналогичным параметрам легкового автомобиля.
Рис. 7. Крепление имитаторов автомобилей
Загрузка вагона шпалами осуществлялась с торцевых и боковых дверных проемов с погрузочной техники.
Испытания вагона модели 11-835-01 (рис. 8) на соударение проводились при загрузке вагона имитаторами автомобилей (стальными блоками, облег-чающими их погрузку и крепление), которые были установлены на деревян-ные помосты (рис. 9). Ширина и длина помостов соответствовала колесной базе (по длине и ширине) среднестатистического легкового автомобиля. В продольном положении помосты были закреплены колесными упорами.
Рис. 8. Крытый вагон модели 11-835-01 для перевозки автомобилей производства Transtech (г. Оулу, Финляндия)
Рис. 9. Крепление имитаторов автомобилей
Эксплуатационные испытания данного вагона, проведенные с применением автомобилей, позволили оценить надежность колесных упоров для удержании груза при действии ударных нагрузок.
Обобщая полученный в ходе исследований Инженерного центра материал, можно констатировать следующее:
– Предложены новые схемы погрузки крытых вагонов для перевозки автомобилей, сокращающие время проведения комплекса испытаний.
– Показано, что загрузка натурными автомобилями позволяет провести в полном объеме эксплуатационные и функциональные испытания, оценить удобство погрузки, разгрузки, надежности креплений.
– Применение натурных автомобилей при поведений стационарных (статических, ударных, тормозных) и ходовых (динамических, прочностных, тормозных) испытаниях затруднено. Это обусловлено необходимостью осуществлять их загрузку, применять специализированную погрузочную технику или эстакады, что вызывает значительное увеличение стоимости таких испытаний.
– Использование специальных имитаторов позволяет снизить стоимость испытаний, но требует большого объема погрузочно-разгрузочных работ с применением ручной силы.
Типовые программы и методики испытаний крытых вагонов для перевозки автомобилей, разработанные с учетом накопленного опыта, должны стать эффективным инструментом по оптимизации процесса всего комплекса испытаний при постановке на производство вагонов новых моделей.
Список литературы
1. Нормы для расчета и проектирования новых модернизированных вагонов железных дорог МПС колеи 1520 мм (несамоходных). М. : ГосНИИВ-ВНИИЖТ, 1996. – 317 с.
2. Нормы безопасности на железнодорожном транспорте : НБ ЖТ ЦВ 01-98. – М., 1998. – 26 с.
3. Вагоны грузовые и пассажирские : РД 24.050.37-95 : методы испытаний на прочность и ходовые качества. – М. : ГосНИИВ, 1995. – 102 с.